Nel mondo della progettazione BIM, modellare un edificio in 3D non è più sufficiente: serve anche gestire il tempo.
Revit permette di farlo grazie a un sistema chiamato fasi di progetto, che consente di rappresentare le diverse tappe temporali di un intervento, come lo stato esistente, le demolizioni e le nuove costruzioni.
Questa funzione diventa cruciale soprattutto nelle ristrutturazioni, dove convivono elementi vecchi, nuovi e da rimuovere. Le fasi aiutano a tenere tutto sotto controllo, rendendo il processo progettuale più chiaro, ordinato e coerente.
Cos’è una fase in Revit
In Revit, ogni fase rappresenta un momento distinto nel tempo del progetto. Gli elementi inseriti nel modello vengono associati a una specifica fase, che definisce il momento della loro creazione oppure demolizione. Immagina di voler ristrutturare un edificio: potrai indicare quali muri esistono già, quali andranno demoliti e quali verranno costruiti ex novo. Questa struttura temporale consente di seguire l'evoluzione dell’intervento in maniera organizzata, evitando confusione tra ciò che è già presente e ciò che è ancora da realizzare.
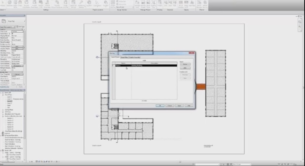
Come si impostano le fasi
Per gestire le fasi in Revit si utilizza il pannello presente nella scheda “Gestisci”. Qui si accede a una finestra dove è possibile visualizzare l’elenco delle fasi esistenti e crearne di nuove, ordinandole secondo la sequenza temporale del progetto. Di default Revit propone due fasi: “Stato di Fatto” e “Stato di Progetto”, ma possono essere modificate o integrate con ulteriori fasi intermedie in base alla complessità dell’intervento. Ogni vista può essere associata a una fase specifica, così da mostrare soltanto ciò che interessa in quel momento preciso del ciclo di progetto.

Visualizzazione per fasi
Uno degli aspetti più utili del sistema delle fasi è la possibilità di rappresentare visivamente gli elementi in modo diverso a seconda del loro stato. Ad esempio, i muri già presenti possono essere mostrati con un certo tipo di tratteggio, quelli da demolire con un altro ancora, mentre quelli nuovi possono apparire con linee piene. Questa differenziazione avviene grazie ai filtri di fase, che determinano come ogni elemento verrà visualizzato nella vista. In questo modo, la lettura del progetto risulta più intuitiva per tutti: dal progettista al cliente, fino all’impresa esecutrice.

Filtri di fase e viste dedicate
Revit permette di creare viste specifiche per ogni fase del progetto. Ad esempio, si possono generare una pianta dello stato di fatto, una per la demolizione e una per la nuova costruzione. Queste viste non solo migliorano la chiarezza grafica delle tavole, ma permettono anche di organizzare meglio la documentazione. I filtri di fase, che regolano l’aspetto degli oggetti in ogni vista, possono essere personalizzati per rispettare gli standard grafici dello studio o le esigenze del committente. Inoltre, anche gli abachi e i computi possono essere filtrati per fase, offrendo un quadro dettagliato e preciso di ogni momento del progetto.

Perché usare le fasi in Revit
Utilizzare le fasi all’interno di Revit non è solo una questione di organizzazione grafica, ma rappresenta un vero e proprio salto di qualità nella gestione del progetto. In un unico modello si può tenere traccia dell’intero processo, senza dover creare file separati o duplicare il lavoro. Questo approccio migliora la comunicazione tra le figure coinvolte e permette di produrre una documentazione chiara e coerente, che tiene conto di ogni passaggio progettuale. Soprattutto nelle ristrutturazioni, dove convivono elementi nuovi ed esistenti, le fasi offrono un controllo totale sulla trasformazione dell’edificio.
Il valore delle fasi nel flusso BIM
Le fasi in Revit rappresentano una delle funzionalità più potenti ma spesso sottovalutate del software. Integrare il fattore tempo all’interno del modello consente di affrontare i progetti in modo più realistico, ordinato e professionale. Non si tratta solo di un vantaggio operativo: è anche un modo per offrire ai clienti una visione più completa e dinamica del progetto. Saper gestire le fasi significa migliorare la pianificazione, la comunicazione e l’efficienza dell’intero processo. Un piccolo investimento di tempo nella fase iniziale può portare enormi benefici lungo tutto il percorso progettuale.
Dalla modellazione BIM all’analisi tecnica: progetta con più precisione
Hai già familiarità con le fasi di progetto in Revit e vuoi fare un passo avanti nella qualità delle tue progettazioni? Affiancare al modello BIM strumenti di analisi FEM e CFD ti consente di validare scelte strutturali e impiantistiche fin dalle prime fasi del progetto.